Wohnung

Moderne Eigentumswohnung mit genialer barrierefreier Raumaufteilung.

66538 Neunkirchen zum Verkauf
Wohnfläche:70m²
Zimmer:2,5
Baujahr2.013
Kaufpreis:179.000 EUR
mehr Anzeigen
BARRIEREFREI & LICHTDURCHFLUTET

Die sehr schön ausgestattete Wohnung befindet sich im nördlichen Bereich der Stadt Neunkirchen. Ruhig gelegen ist sie eine ideale Wohnung für zwei Personen. Die Nähe zum Zentrum und zum Bahnhof sind weitere positive Faktoren.

Der eigene Zugang zur Wohnung ist barrierefrei. Die weiteren Wohnungen in den Obergeschossen sind durch ein eigenes Treppenhaus erschlossen.

Der Grundriss der Wohnung ist beigefügt.

Neunkirchen ist eine saarländische Kreisstadt an der Blies, etwa 20 km nordöstlich der Landeshauptstadt Saarbrücken gelegen. Mit rund 46.000 Einwohnern ist Neunkirchen nach Saarbrücken die zweitgrößte Stadt des Saarlandes. Sie ist Kreisstadt des gleichnamigen Landkreises im Osten des Saarlands.

Neunkirchen gehört dem Naturschutzgroßprojekt Landschaft der Industriekultur Nord (LIK.Nord) an. Die Städte Neunkirchen und Friedrichsthal, die Gemeinden Illingen, Merchweiler, Schiffweiler und Quierschied sowie der Landkreis Neunkirchen und die Industriekultur Saar GmbH (IKS) haben sich zu einem Zweckverband zusammengeschlossen und 2009 den Bundeswettbewerb Naturschutzgroßprojekte und ländliche Entwicklung des Bundesumweltministerium gewonnen. Ziel des Projekts ist die zukunftsfähige Entwicklung der altindustriellen und vom Bergbau geprägten Landschaft zu gestalten. Hierdurch soll der Artenreichtum der Landschaft durch Pflege und gezielte Eingriffe erhalten und weiter ausgebaut werden. Auf dem Gebiet der Stadt Neunkirchen befindet sich das Landschaftslabor Bergbaufolgelandschaft. Das Projekt befindet sich seit Ende 2013 in der Umsetzungsphase und wird, Stand 2021, von bergbaulich/chemischen Altlasten nun weiträumig befreit.

Neunkirchen ist über die Autobahnen 6 (Saarbrücken Waidhaus) und 8 (PerlBad Reichenhall) sowie die Bundesstraße 41 (SaarbrückenBad Kreuznach) an das überregionale Straßennetz angebunden.

Die Stadt ist desweiteren über die Bahnhöfe Neunkirchen (Saar) Hauptbahnhof, Neunkirchen-Wellesweiler und Neunkirchen-Wiebelskirchen an das europäische Schienennetz angebunden. Im Hauptbahnhof treffen sich die Strecken der Fischbachtalbahn, der Nahetalbahn und der Bahnstrecke HomburgNeunkirchen. Seit dem Jahr 2007 betreibt die Deutsche Bahn AG einen Intercity-Express der Baureihe 403, ICE 3 mit dem Namen "Neunkirchen".

Die Ausstattung ist als durchweg hochwertig. Trendige, großformatige Fliesen, Parkett und eine moderne offene Küche mit namhaften Markengeräten sind verbaut bzw. installiert.

Die Terrasse, mit Sichtschutz versehen, bietet sich zum Grillen und Chillen an. Eine Garage ist Bestandteil des Miteigentumsanteils und wird - ebenso wie der davorliegende Stellplatz - mit verkauft.

Anmerkung: Die Fotos wurden unmittelbar nach Fertigstellung der Wohnung aufgenommen. Kleinere Restarbeiten sind zwischenzeitlich natürlich fertiggestellt. Die Wohnung ist derzeit vermietet.

Direktanfrage


* bitte geben Sie mindestens eine Kontaktmöglichkeit an

Wohnung

4 ZKB mit Terrasse zu vermieten in Pirmasens-Niedersimten

66955 Pirmasens / Niedersimten zu Vermieten
Wohnfläche:94m²
Zimmer:4,0
Baujahr1.911
Kaltmiete:390 EUR
Nebenkosten:120 EUR
mehr Anzeigen
Die Wohnung befindet sich im 1. Obergeschoß eines Mehrfamilienhauses.

Sie verfügt über ein großes Wohnzimmer, eine Küche, zwei Schlafzimmer, ein Bad mit Wanne sowie eine Diele und eine Terrasse. Ausgestattet sind die Wohnräume teils mit PVC und Laminatboden, Fliesen im Badezimmer.

Stadtauswärts in südwestlicher Richtung von Pirmasens (ca. 40.000 Einwohner) liegt, eingebettet in einer Talsenke, umgeben von Wald und herrlicher Natur, mit Zugang zum Naherholungsgebiet Gersbachtal, der Stadtteil Niedersimten. Heute zählt der Vorort ca. 1.050 Einwohner. Niedersimten ist geprägt durch ein vielfältiges Angebot an Vereinen und bietet somit allen Interessierten ein reges Vereinsleben.

Der ehemals zusammen mit Obersimten eine Gemeinde bildende Stadteil Niedersimten liegt nur 2 km von Pirmasens entfernt. Lebensmittelsupermärkte, Bäckereien, Metzgereien usw. - kurz gesagt: Alle Dinge die zum täglichen und auch längerfristigen Bedarf zählen - sind in 5 bis 10 Minuten mit dem Auto oder den regelmäßig verkehrenden Stadtbuissen einfach und gut zu erreichen. Pirmasens bietet alle Annehmlichkeiten eines Mittelzentrums im Bereich der Südwestpfalz. Ebenso ist ein städisches Krankenhaus mit mehr als 12 Schwerpunktzentren eingerichtet. Zahlreiche Facharztpraxen ergänzen das vielfältige Angebot.

Weiterführende Schulen sind in Pirmasens ansässig. Eine Dependance der Hochschule Kaiserslautern hat ihren Sitz unweit der B 270 bzw. B10 (überregionale Bundesstraßen) im Norden von Pirmasens. Kindergarten, Kindertagesstätten und weitere Betreuungsangebote sind in Pirmasens vorhanden. Sämtliche Dienstleistungs- und Handwerkerbranchen sind ebenso zu finden wie Geldinstitute und größere Arbeitgeber, wie z.B. Fabriken (Profine/Kömmerling oder die Schuhindustrie, die z.T. noch in Pirmasens produziert) oder Lebensmittelgroßhandel (z.B. Wasgau).

Doppelverglasung
Heizung - Nachtspeicherheizung (2025)

Die Firma Gödtel Immobilien GmbH als Vermittler übernimmt keine Haftung, Gewährleistung und/oder sonstige Einstandspflichten im Zusammenhang mit dem Inhalt und/oder der Richtigkeit dieses Exposés. Alle Angaben beruhen auf Mitteilungen der Auftraggeber und erfolgen ohne unsere Gewähr für die Richtigkeit. Irrtum und Zwischenvermittung vorbehalten.

Direktanfrage


* bitte geben Sie mindestens eine Kontaktmöglichkeit an

Wohnung

Kapitalanlage in bevorzugter Lage in Hohenecken zu verkaufen

67661 Kaiserslautern / Hohenecken zum Verkauf
Wohnfläche:21m²
Baujahr1.992
Kaufpreis:59.000 EUR
mehr Anzeigen
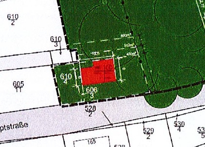
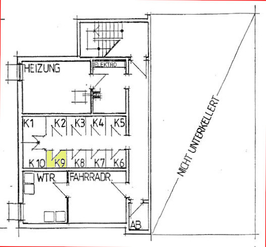
Das Apartment Nr. 9 befindet sich in einem zweistöckigen, teilunterkellerten Mehrfamilienhaus mit insgesamt 10 Apartments. Zum Apartment gehört ein Wohn/Schlafzimmer, eine Kochnische mit Pantryküche, ein Duschbad, und ein ein Abstellraum im Kellerbereich. Ein befestigter Stellplatz im Freien ist angemietet. Das Apartment ist durch seine große Fensterfront lichtdurchflutet und hell. Das vor ca. 30 Jahren in konventioneller Massivbauweise errichtete Gebäude befindet sich in gutem Bau- und Unterhaltungszustand.

Das Eigentumsgrundstück hat eine ca. 719 m² große Gesamtfläche, ist angelegt und wird von einem Hausmeisterservice gepflegt. Es besteht die Möglichkeit für die Mieter, den großen Gartenbereich mit zu nutzen.

Die Zentralheizungsanlage wurde 2023 installiert. Der vorliegende Energieausweis berücksichtigt noch die alte Anlage.

Das Apartmenthaus liegt in einer ruhigen Seitenstraße (Stichstraße) in Hohenecken. Über die Bundesstraße (B 270) ist die Kernstadt Kaiserslautern gut und schnell zu erreichen. Städtische Linienbusse, auch direkt zum Universitätscampus, verkehren in hoher Frequenz regelmäßig. Die Bushaltestelle ist fünf Gehminuten entfernt. Desweiteren gibt es auch eine Bahnverbindung zum Hauptbahnhof Kaiserslautern. Vielfältige Einkaufsmöglichkeiten sind in Hohenecken und im ca. 3 km entfernten Kaiserslauterer Gewerbegebiet West vorhanden.

Zur Universität (die auch in wenigen Minuten per Fahrrad durch den Pfälzer Wald zu erreichen ist) sind es etwa 4 km, zur Fachhochschule ebenfalls etwa 4 km und ins Zentrum von Kaiserslautern etwa 6 km.

Zeitgemäße normale Ausstattung.
Neue Zentralheizung (2023 eingebaut).
Bad mit Dusche, Handwaschbecken und WC.
Pantryküche im Preis enthalten.
Breitbandkabelanschluss (TV).
Schneller Internetzugang (DSL).
Stellplätze vor dem Haus (keine gebührenpflichtige Anwohnerparkzone) können angemietet werden.

Ausführliche Informationen erhalten Sie jederzeit per E-Mail. Für Terminvereinbarungen zur Besichtigung des Objekts bitten wir mit unserer Mitarbeiterin, Frau Feurich, zu sprechen. Sie ist für Sie unter der Telefonnummer 0631 66766 erreichbar.

Die Firma Gödtel Immobilien GmbH als Vermittler übernimmt keine Haftung, Gewährleistung und/oder sonstige Einstandspflichten im Zusammenhang mit dem Inhalt und/oder der Richtigkeit dieses Exposés. Alle Angaben beruhen auf Mitteilungen der Auftraggeber und erfolgen ohne unsere Gewähr für die Richtigkeit. Irrtum und Zwischenverkauf vorbehalten. Wir weisen explizit darauf hin, dass die von uns weitergegebenen Objektinformationen vom Verkäufer und von uns weder auf ihre Richtigkeit noch auf ihre Vollständigkeit überprüft worden sind.

Hinweis: Durch die schriftliche Bestätigung der Inanspruchnahme unserer Tätigkeit als Makler kommt ein Maklervertrag zustande, insbesondere durch die Zusendung des Objektexposes und/oder der Erteilung eines Suchauftrags. Die Höhe der Maklercourtage ist in der rechtsverbindlichen gesetzlichen Regelung über die Verteilung der Maklerkosten bei der
Vermittlung von Kaufverträgen über Wohnungen und Einfamilienhäuser vom 23. Dezember 2020 geregelt. Darin wird festgelegt, dass für den Verkäufer und den Käufer jeweils die ortsübliche Courtage von drei Prozent zuzüglich des jeweils gültigen Steuersatzes beim notariellen Vertragsabschluss verdient und fällig ist (Teilung der Courtage von ortsüblich sechs Prozent zuzüglich des jeweils geltenden Steuersatzes). Dadurch entsteht ein direkter Zahlungsanspruch gegenüber dem Käufer nach § 328 BGB (Vertrag zugunsten Dritter). Die Firma Gödtel Immobilien GmbH hat mit dem Auftraggeber (Verkäufer) einen Maklervertrag in gleicher Höhe abgeschlossen.

Direktanfrage


* bitte geben Sie mindestens eine Kontaktmöglichkeit an

Wohnung

Kompakte 48 qm in kleiner Hausgemeinschaft im Landauer Stadtviertel Ho

76829 Landau in der Pfalz zum Verkauf
Wohnfläche:48m²
Zimmer:2,0
Baujahr1.971
Kaufpreis:115.000 EUR
mehr Anzeigen
Aktuell ist die Wohnung seit 2021 für eine Kaltmiete von 450,00 Euro vermietet. Sie können sie als Kapitalanlage (Staffelmietvertrag) fortführen oder mittelfristig selbst nutzen. Sie suchen kein austauschbares Wohnobjekt, sondern eine Wohnung, die Sie nach Ihren eigenen Vorstellungen gestalten können? Dann wird Sie dieses Angebot interessieren.

Die ca. 48 qm große Wohnung liegt im Souterrain eines kleinen Mehrfamilienhauses (Mehrspänner) aus dem Jahr 1971 mit nur insgesamt vier Parteien. Sie bietet den soliden Grundriss, den Sie brauchen, um Ihre eigenen Ideen umzusetzen und genau das macht sie spannend.

Das Wohnzimmer mit offener Küchenecke ist großzügig geschnitten und bildet den Mittelpunkt. Hier lässt sich ein gemütlicher Wohnbereich mit Essplatz einrichten. Sie haben die Freiheit, Küche und Wohnbereich nach Ihrem Geschmack zu modernisieren und so eine offene Wohlfühlatmosphäre zu schaffen.

Das Schlafzimmer ist ruhig gelegen und überzeugt durch seine klare Form, die sich leicht möblieren lässt. Das Bad mit Badewanne ist funktional, doch auch hier gilt: Wer renovieren möchte, kann den gut nutzbaren Raum in eine kleine Wellnessoase verwandeln.

Die Hausgemeinschaft ist überschaubar, Sie teilen sich das Gebäude mit nur wenigen Nachbarn. Für Ordnung und Pflege sorgen Hausverwaltung und Hausmeister. Praktische Extras wie Kellerraum und Abstellraum in der Wohnung stehen ebenfalls zur Verfügung. Für Ihr Auto sind kostenfreie Parkplätze ohne Zeitbeschränkung unmittellbar am Grundstück (Danziger Platz) mehr als ausreichend vorhanden.

Die Wohnung liegt in einem gewachsenen, stadtnahen Wohnumfeld von Landau einer Stadt, die zugleich ländliche Ruhe und städtische Infrastruktur verbindet. Sie wohnen hier nicht im reinen Vorort, aber auch nicht mitten im hektischen Innenstadtbetrieb. Die Lage gehört zum Stadtteil Horst / Kernstadt und ist eingebunden in ein Wohngebiet, in dem sowohl Bestand als auch Neubauten Bestand haben ein Zeichen dafür, dass sich die Gegend weiterentwickelt.

Ein großer Vorteil: Einkaufsmöglichkeiten, Lokale, Arztpraxen oder kleinere Geschäfte liegen häufig nur wenige Minuten entfernt, entweder fußläufig oder mit dem Rad erreichbar. Was Mobilität betrifft: Landau ist überregional gut angebunden. Die Bundesstraße 10 bringt Sie in direkte Verbindung mit den umliegenden Städten und Regionen.

Kultur, Natur, Freizeit all das ist nicht weit: Landau gilt als Wein- und Gartenstadt, eingebettet zwischen Feldern, Weinbergen und dem Pfälzerwald. Radwege und Spazierwege gibt es in der Umgebung, sodass Sie schnell ins Grüne kommen, obwohl Sie im Stadtbereich wohnen.

Im östlichen Stadtgebiet liegt das in den 1970iger Jahren entstandene Wohnquartier. Es zeichnet sich durch die ruhige Lage und die gute Erreichbarkeit des Stadtkerns (ÖPNV oder mit dem Fahrrad in ca. 10 Min.) und der fußläufig zu erreichenden Geschäfte für den täglichen Bedarf aus.

Das Wohnquartier Horst in der Gartenstadt Landau ist ein beliebtes Wohnquartier mit vielen Bäumen und Gärten auf den Grundstücken. Hierzu zwei interessante Links:
https://www.staedtebaufoerderung.info/DE/Praxis/ArbeitshilfenLeitfaeden/Praxisbox_Klimaquartiere/Klimaquartiere/Steckbriefe/Landau_Pfalz/Landau_Pfalz_node.html
https://static.werdenktwas.de/domain/217/fs/QM_Horst_wdw/250903_PrsentationEntwrfe.pdf

Etwa 45.000 Menschen leben zurzeit in der Südpfalzmetropole Landau.

Die Ausstattung der Wohnung ist gepflegt und funktionell. Die Wohnung ist vermietet. Auf die Veröffentlichung von Innenaufnahmen der Räumlichkeiten wurde zum Schutz der Privatsphäre der Mieter verzichtet.

Direktanfrage


* bitte geben Sie mindestens eine Kontaktmöglichkeit an

Wohnung

2 Zimmer-Apartment mit TG Stellplatz in Kaiserslautern Unigebiet zu ve

67663 Kaiserslautern zum Verkauf
Wohnfläche:46m²
Zimmer:2,0
Baujahr1.982
Kaufpreis:149.000 EUR
mehr Anzeigen
Das schöne 2 Zimmer-Appartement befindet sich im 2. Obergeschoß der gepflegten Wohnanlage.

Das Appartement ist mit einer Badewanne, einem kleinen Abstellraum und einem großzügigen Wohnbereich mit Küchenzeile ausgestattet.

Kaiserslautern zählt mit ca. 100.000 Einwohnern zu den fünf größten Städten in Rheinland-Pfalz. Mit der A6 (Mannheim-Saarbrücken) und der A 63 (Kaiserslautern - Mainz) ist eine sehr gute Anbindung an das Fernstraßennetz gegeben.

Der Hauptbahnhof ist Haltepunkt der ICE-Verbindung Frankfurt-Saarbrücken-Paris und wurde 2007 zusätzlich auch als Halt für die Transeuropäische Hochgeschwindigkeitslinie Paris-Frankfurt (Rhealys) eingerichtet. Weiterhin fährt die S-Bahn Rhein-Neckar in Richtung Mannheim/Heidelberg, sowie Regionalbahnen in Richtung Pirmasens und Bingen.

Kaiserslautern stellt das unangefochtene Oberzentrum der Westpfalz mit großem Einzugsgebiet dar. Sämtliche Annehmlichkeiten einer "kleinen" Großstadt sind in kurzer Zeit zu erreichen. Alle notwendigen Einrichtungen und Geschäfte für den täglichen und längerfristigen Bedarf sind fußläufig erreichbar bzw. in unmittelbarer Nähe.

Diese Wohnung liegt in einer Appartementwohnanlage fast unmittelbar an der Technischen Universität Kaiserslautern.

- Gaszentralheizung
- Kunststofffenster mit Isolierverglasung
- Gegensprechanlage
- DSL und Breitbandkabelanschluss

Ausführliche Informationen erhalten Sie jederzeit per E-Mail. Für Terminvereinbarungen zur Besichtigung des Objekts bitten wir um Rücksprache mit unserem Büro, gerne per E-Mail.

Die Firma Gödtel Immobilien GmbH als Vermittler übernimmt keine Haftung, Gewährleistung und/oder sonstige Einstandspflichten im Zusammenhang mit dem Inhalt und/oder der Richtigkeit dieses Exposés. Alle Angaben beruhen auf Mitteilungen der Auftraggeber und erfolgen ohne unsere Gewähr für die Richtigkeit. Irrtum und Zwischenverkauf vorbehalten. Wir weisen explizit darauf hin, dass die von uns weitergegebenen Objektinformationen vom Verkäufer und von uns weder auf ihre Richtigkeit noch auf ihre Vollständigkeit überprüft worden sind.

Hinweis: Durch die schriftliche Bestätigung der Inanspruchnahme unserer Tätigkeit als Makler kommt ein Maklervertrag zustande, insbesondere durch die Zusendung des Objektexposes und/oder der Erteilung eines Suchauftrags. Die Höhe der Maklercourtage ist in der rechtsverbindlichen gesetzlichen Regelung über die Verteilung der Maklerkosten bei der Vermittlung von Kaufverträgen über Wohnungen und Einfamilienhäuser vom 23. Dezember 2020 geregelt. Darin wird festgelegt, dass für den Verkäufer und den Käufer jeweils die ortsübliche Courtage von drei Prozent zuzüglich des jeweils gültigen Steuersatzes beim notariellen Vertragsabschluss verdient und fällig ist (Teilung der Courtage von ortsüblich sechs Prozent zuzüglich des jeweils geltenden Steuersatzes). Dadurch entsteht ein direkter Zahlungsanspruch gegenüber dem Käufer nach § 328 BGB (Vertrag zugunsten Dritter). Die Firma Gödtel Immobilien GmbH hat mit dem Auftraggeber (Verkäufer) einen Maklervertrag in gleicher Höhe abgeschlossen.

Direktanfrage


* bitte geben Sie mindestens eine Kontaktmöglichkeit an

Wohnung

2 ZKB - Apartment als Kapitalanlage in Hohenecken zu verkaufen

67661 Kaiserslautern / Hohenecken zum Verkauf
Wohnfläche:43m²
Zimmer:1,0
Baujahr1.992
Kaufpreis:128.500 EUR
mehr Anzeigen
1992 wurde das Apartmenthaus in massiver Bauweise errichtet. Es befindet sich in einem guten Bau- und Unterhaltungszustand. Das Grundstück ist gepflegt. Im vorderen Bereich sind die zugeordneten Stellplätze.

Das Gebäude ist zweigeschossig und voll unterkellert. Es umfasst 16 Apartments, teils mit Kellerräumen und Stellplätzen. Eine neue Gas - Zentralheizung wurde 2023 eingebaut.

Ein alter Baumbestand wertet das ca. 719 qm große Grundstück auf. Am Ende der Stichstraße beginnt der Naturpark Pfälzerwald.

Hinweis zum Hausgeld: Es beinhaltet auch die verhältnismäßig hohen Kosten für Heizung und Wasser, die der Mieter zu verantworten hat. Diese Kosten sind umlegbar.

Das Apartmenthaus liegt in einer ruhigen Seitenstraße (Stichstraße) in Hohenecken. Über die Bundesstraße (B 270) ist die Kernstadt Kaiserslautern gut und schnell zu erreichen. Städtische Linienbusse, auch direkt zum Universitätscampus, verkehren regelmäßig. Die Bushaltestelle ist fünf Gehminuten entfernt. Desweiteren gibt es auch eine Bahnverbindung zum Hauptbahnhof Kaiserslautern. Vielfältige Einkaufsmöglichkeiten für den täglichen Bedarf sind in Hohenecken und im ca. 3 km entfernten Kaiserslauterer Gewerbegebiet West vorhanden.

Zur Universität, die auch in wenigen Minuten per Fahrrad quer durch den Pfälzer Wald zu erreichen ist, sind es etwa 4 km, zur Fachhochschule ebenfalls etwa 4 km und ins Zentrum von Kaiserslautern etwa 6 km.

- Gas-Zentralheizung, 2023 installiert mit Warmwasserspeicher (nicht im vorliegenden Energieausweis berücksichtigt)
- Waschmaschinenplatz im Keller möglich
- Stellplatz im Freien
- 2 Balkone
- Pantryküche
- gute Ausstattung
- gute Miete (Rendite)
- Kosten für Heizung und Wasser sind in den umlegbaren Bewirtschaftungskosten enthalten

Ausführliche Informationen erhalten Sie jederzeit per E-Mail. Für Terminvereinbarungen zur Besichtigung des Objekts bitten wir mit unserer Mitarbeiterin, Frau Feurich, zu sprechen. Sie ist für Sie unter der Telefonnummer 0631 66766 erreichbar.

Die Firma Gödtel Immobilien GmbH als Vermittler übernimmt keine Haftung, Gewährleistung und/oder sonstige Einstandspflichten im Zusammenhang mit dem Inhalt und/oder der Richtigkeit dieses Exposés. Alle Angaben beruhen auf Mitteilungen der Auftraggeber und erfolgen ohne unsere Gewähr für die Richtigkeit. Irrtum und Zwischenverkauf vorbehalten. Wir weisen explizit darauf hin, dass die von uns weitergegebenen Objektinformationen vom Verkäufer und von uns weder auf ihre Richtigkeit noch auf ihre Vollständigkeit überprüft worden sind.

Hinweis: Durch die schriftliche Bestätigung der Inanspruchnahme unserer Tätigkeit als Makler kommt ein Maklervertrag zustande, insbesondere durch die Zusendung des Objektexposes und/oder der Erteilung eines Suchauftrags. Die Höhe der Maklercourtage ist in der rechtsverbindlichen gesetzlichen Regelung über die Verteilung der Maklerkosten bei der Vermittlung von Kaufverträgen über Wohnungen und Einfamilienhäuser vom 23. Dezember 2020 geregelt. Darin wird festgelegt, dass für den Verkäufer und den Käufer jeweils die ortsübliche Courtage von drei Prozent zuzüglich des jeweils gültigen Steuersatzes beim notariellen Vertragsabschluss verdient und fällig ist (Teilung der Courtage von ortsüblich sechs Prozent zuzüglich des jeweils geltenden Steuersatzes). Dadurch entsteht ein direkter Zahlungsanspruch gegenüber dem Käufer nach § 328 BGB (Vertrag zugunsten Dritter). Die Firma Gödtel Immobilien GmbH hat mit dem Auftraggeber (Verkäufer) einen Maklervertrag in gleicher Höhe abgeschlossen.

Direktanfrage


* bitte geben Sie mindestens eine Kontaktmöglichkeit an

Haus

Neu renoviertes Zweifamilienhaus mit Freizeitgrundstück in Otterbach.

67731 Otterbach zum Verkauf
Wohnfläche:153m²
Zimmer:6,0
Grundstücksgröße471 m²
Kaufpreis:425.000 EUR
mehr Anzeigen
Das Gebäude:
Das Ein-/Zweifamilienhaus liegt im östlichen Teil der Gemeinde Otterbach. Das ursprüngliche Gebäude wurde bis zur Kellerdecke abgetragen und 1984 komplett neu aufgebaut. Bau- und Unterhaltungszustand sind gut. Der heutige Eigentümer hat den Grundriss der beiden Wohngeschosse den Anforderungen modernen Wohnens angepasst und z.T. neu gestaltet.

Im nahezu voll unterkellerten Teil ist ein älteres funktionstüchtiges Duschbad installiert. Abstellräume, Heizungsraum und die integrierte Garage sind ebenerdig zu erreichen. Ein Hauswirtschaftsraum mit Waschmaschinen- und Trockneranschluss ist eingerichtet. Die Garage ist beheizt und mit Strom- und Wasseranschluss ausgestattet.

Die Raumaufteilungen:
Aufgrund des ansteigenden Geländeverlaufs wird der Wohnbereich (Erd- und Dachgeschoss) vom gemeinsamen abgeschlossenen Treppenhaus zugänglich. Vor drei Jahren wurden beide Wohnungen umgebaut und neu aufgeteilt.

Das Erdgeschoss:
Die zentrale Diele verbindet alle Räume. Das Badezimmer ist 2022 erneuert und gleichzeitig vergrößert worden. Küche, Wohnzimmer und zwei Schlafzimmer stehen zur Verfügung. Die Wohnfläche beträgt rd. 82 m². Hinzu kommt noch die Terrasse an der Nordseite, die gleichzeitig Zugang zum etwas höher gelegenen Gartengrundstück ist.

Das Dachgeschoss:
Auch hier ist die zentrale Diele der Ausgangspunkt. Das neu gestaltete Badezimmer (2022) die Küche und drei Zimmer befinden sich hier. Die Wohnfläche beträgt rd. 71 m², bedingt durch Dachschrägen.
Die Dachgeschosswohnung ist vermietet.
Auf Fotos im vermieteten Bereich wurde verzichtet. Die Ausstattung ist vergleichbar mit dem Erdgeschoss.

Das Grundstück:
Der Durchgang an der östlichen Seite des Gebäudes ist im Eigentum des hier zu veräußernden Grundstücks. Über eine kleine Treppe erreicht man die Terrasse hinter dem Wohnhaus, die auch vom Erdgeschoss aus zu betreten ist. Das etwas höher gelegene Gartengrundstück ist eine grüne Oase im bebauten Ortsgebiet. Herrlich gelegen, mit Gartenhaus und Grillofen, lädt der Garten zum Verweilen ein. Er kann als Gemüsegarten oder als Freizeitfläche genutzt werden. Durch seine uneinsehbare Lage hinter den Gebäuden ist der Garten ein Ruhepol. Beide Grundstücke werden zusammen verkauft. Das Gartengrundstück hat eine Fläche von rd. 350 m². Es ist komplett eingefriedet.

Die Gemeinde Otterbach:
Die Großgemeinde liegt ca. 7 km nordwestlich von Kaiserslautern im Lautertal. Otterbach hat mehr als 4.000 Einwohner mit entsprechend guter Infrastruktur. Lebensmittelmärkte, Ärzte, Apotheken, weiterer Einzelhandel und Dienstleister sowie Gastronomiebetriebe sind ebenso vorhanden wie Kindertagesstätten und Schulen. Die Nähe zu Otterberg und zur Stadt kaiserslautern sind von Vorteil. Es handelt sich bei Otterbach um eine bevorzugte Wohngemeinde im Umfeld von Kaiserslautern.

Die schöne Landschaft des Nordpfälzer Berglandes, das nahezu alle Outdoorsportarten zulässt und hohen Freizeitwert hat, ergänzt die gute Lage. Viele Vereine kümmern sich um den Freizeitsport, so dass kaum Wünsche offen bleiben.

Otterbach liegt an der Bundesstraße Nr. 270, ca. 5 Autominuten vom Stadtzentrum von Kaiserslautern entfernt. Bis zur Autobahnanschlussstelle Kaiserslautern West (A 6) brauchen Sie etwa 10 Minuten (7 km). Der Haltepunkt Otterbach wird von der Regionalbahn Kaiserslautern-Kusel regelmäßig bedient. Auch regelmäßg verkehrende Linienbusse fahren die Städte Otterberg und Kaiserslautern sowie die umliegenden Orte an.

Neue Gastherme (2025)
Neue Bäder (2022) im Erd- und Dachgeschoss
Neue Einbauküche (im Kaufpreis enthalten)
Neue Raumaufteilung (2022)
Moderne Gestaltung der Räume
Hochwertige Materialen
Uneinsehbare Terrasse
Schönes höhergelegenes Garten-/Freizeitgrundstück (350 m²)
Unterkellerung mit integrierter Garage

Direktanfrage


* bitte geben Sie mindestens eine Kontaktmöglichkeit an

Haus

Gelegenheit für die große Familie: Zweifamilienhaus mit Einliegerwohnu

67661 Kaiserslautern zum Verkauf
Wohnfläche:175m²
Zimmer:8,0
Grundstücksgröße562 m²
Baujahr1.960
Kaufpreis:395.000 EUR
mehr Anzeigen
Das Mehrfamilienhaus in guter Wohnlage von Kaiserslautern-Siegelbach ist eine langfristig Rendite generierende Investition. Das freistehende, 1960 erbaute Gebäude überzeugt durch die ruhige Lage in einer Wohnstraße. Sanierungen und Renovierungen wurden in den 2000er Jahren vorgenommen.

Das im Stil eines großen Siedlungshauses erbaute Mehrfamilienhaus besteht aus drei separaten Wohneinheiten (2 grundrissgleiche Hauptwohnungen, 1 Einliegerwohnung im Untegeschoss). Die Immobilie ist für Eigennutzer und für Kapitalanleger gut geeignet. Auch eine ausschließliche Nutzung als Einfgafilienhaus für die große Familie ist ohne Umbauten möglich.

Die Wohnung im Dachgeschoss wird zum 1. August 2026 frei. Ein Bezug oder die Anschlussvermietung ist danach möglich.

Die Einzelgarage ist zusammen mit dem Hauptgebäude im Jahr 1960 errichtet worden. Das Flachdach der Garage wird als Terrasse, erweitert durch einen großen Balkon, vom Erdgeschoss aus genutzt. Es ergibt sich ein herrlicher Blick auf das Grundstück und auf einen Teil von Siegelbach. Der vorgebaute Carport wurde später errichtet.

Investitionen zur Erhaltung und Unterhaltung der Bausubstanz wurden kontinuierlich vorgenommen. Das Gesamtgebäude präsentiert sich in einem guten baulichen Bau- und Unterhaltungszustand.

Das leicht nach Süden ansteigende Grundstück ist großzügig bemessen und hat eine annähernd rechteckige Grundstücksform. Der angelegte Teil ist als Garten und Freizeitfläche gut zu nutzen. Das Grundstück ist komplett umzäunt.

Die Kombination aus zeitgemäßer Ausstattung, vergleichsweise guter Energieeffizienz, einem großen schönen Grundstück und einer guten Vermietbarkeit ist dieses Angebot eine Gelegenheit, z.B. Kapital langfristig und gewinnbringend zu investieren.

Genauso geeignet ist die Immobilie für eine Nutzung als großes Einfamilienhaus mit schönem Grundstück in ruhiger aber doch verkehrsgünstiger Lage.

Nutzen Sie die Chance für eine unverbindliche Besichtigung der Immobilie.

Siegelbach ist ein nordwestlicher Stadtteil der kreisfreien Großstadt Kaiserslautern in Rheinland-Pfalz. Der Stadtteil zählt zu den gefragtesten Wohnlagen der Region. Insbesondere die unmittelbare Nähe zur Universitätsstadt Kaiserslautern und die ruhige, grüne Umgebung des Stadtteils in Verbindung mit der hervorragenden Infrastruktur mit Schulen, Kindergärten, Gewerbegebiet und einer Vielzahl an Einkaufsmöglichkeiten in unmittelbarer Nähe werden von Familien besonders geschätzt.

Kurze Wege, kurze Fahrzeiten!
Dank der nahegelegenen Autobahnanschlussstellen erreichen Berufspendler in sehr kurzer Zeit die A6 und A63. Gleichzeitig bietet Siegelbach mit seinen Naherholungsgebieten, einem Zoo und diversen Freizeitmöglichkeiten eine hohe Lebensqualität.

Sie suchen ein harmonisches Umfeld zum Wohnen mit guter Anbindung - dann sind Sie hier genau richtig! Die Immobilie befindet sich im westlichen Ortsgebiet von Siegelbach. Der Stadtteil liegt etwa 7 km vom Stadtzentrum von Kaiserslautern entfernt. Über die B270 ist das Gewebegebiet West in Kaiserslautern mit vielfältigen Angeboten - von Geschäften für den täglichen Bedarf bis zu Großmärkten - in fünf Minuten zu erreichen.

Der Stadtteil kombiniert eine ländliche Atmosphäre mit vielseitigen Freizeitangeboten und einer erstklassigen Infrastruktur, die für eine hohe Lebensqualität sorgt.

Einige Entfernungen:
+++ 9 km nach Kaiserslautern Stadtmitte Willy-Brandt-Platz (ca. 15 Minuten)
+++ 5 km zum Gewerbegiet West Merkurstraße, Kaiserslautern (ca. 8 Minuten)
+++ 3 km zum Autobahnanschluss A 6 Kaiserslautern - West (ca. 5 Minuten)
+++ 1,5 km zur B 270 (ca. 2 Minuten)
+++ 9,5 km zum Eastgate bei Weilerbach, Airbase Ramstein (ca. 10 Minuten)

Direktanfrage


* bitte geben Sie mindestens eine Kontaktmöglichkeit an

Grundstük

Schöne Grundstücke sind selten geworden: Bauplatz, 900 m² im Park mit

67691 Hochspeyer zum Verkauf
Grundstücksgröße896 m²
Kaufpreis:165.000 EUR
mehr Anzeigen
Das Baugrundstück ist Teil eines größeren Parkgeländes mit altem Baumbestand. Die bereits in einzelne Flurstücke aufgeteilte Fläche von ca. 896 m² bietet reichlich Platz für individuelle Bauvorhaben. Die nähere Umgebung ist geprägt von schönen alten Villengrundstücken mit herrschaftlichen Gartenanlagen. Eine Sandsteinmauer begrenzt das Grundstück zur Straße hin. Die Zufahrt erfolgt über eine Privatstraße, die ein weiteres Villengrundstück erschließt.

Die Genehmigung zum Bau eines Ein-/Zweifamilienhauses, auch als Doppelhaus, liegt vor.

Das Grundstück befindet sich in einzigartiger Lage, sonnig, ruhig und eingebettet in einem herrlichen gepflegten alten Baumbestand. Hier genießen Sie Ihre eigene Privatsphäre - auch wenn die zu verkaufende Fläche mitten im Ortsgebiet liegt - und gleichzeitig ist die Nähe zu allen wichtigen Einrichtungen des täglichen Bedarfs gegeben. Es gibt Dank der Umgehungsstraße im Norden von Hochspeyer keinen Durchgangsverkehr.

Eine einmalige Gelegenheit, um Ihr Traumhaus in einer reizvollen Umgebung zu verwirklichen wird Ihnen hier eröffnet. Auch die vielfältigen Möglichkeiten, ein neues Zuhause ganz nach Ihren Wünschen frei zu gestalten, sollte eine Entscheidung leicht machen.

Hochspeyer kann durch Lebensqualität punkten. Die Großgemeinde mit rd. 4.750 Einwohnern ist mit Geschäften (Lebensmittelsupermarkt) des täglichen Bedarfs und den erforderlichen öffentlichen Einrichtungen ausgestattet. Alle sind fußläufig erreichbar. Der Bauplatz liegt im östlichen Ortsbereich an der Hauptstraße. Durch die Umgehungsstraße (B 37) wurde der Durchgangsverkehr komplett aus dem Ortsbereich genommen. Die Lage ist ruhig und durch den angrenzenden Park einmalig schön.

Verkehrsanbindung:
Die Nähe zu Autobahnen und Bundesstraßen macht den Ort zu einem zentralen Verkehrsknotenpunkt in der Region. Hochspeyer ist über die Bundesstraßen B37 (Kaiserslautern - Bad Dürkheim) und B48 (Bad Bergzabern - Bingen) an den überregionalen Verkehr angebunden. Der Ort liegt in unmittelbarer Nähe der Autobahnen A6 und A63. Hochspeyer ist mit der Bahnstrecke Mannheim Saarbrücken an den Rheinland-Pfalz Takt (S-Bahn Haltepunkt der DB) angebunden. D.h. mit jeweils halbstündigem Anschluss an S-Bahnen nach Kaiserslautern/Homburg und Mannheim/Heidelberg sowie der Alsenztalbahn mit regelmäßigen Nahverkehrszügen von und nach Bad Kreuznach und Bingen am Rhein.

Einige Entfernungen:
- 5 Minuten zur A6, Anschluss Hochspeyer (Saarbrücken - Mannheim) und
- 10 Minuten zur A 63 (Kaiserslautern - Mainz)
- 400 m zum Bahnhof
- 450 m zur Ortsmitte
- 12 km nach Kaiserslautern, Stadtmitte

Öffentliche Einrichtungen:
- Kindertagesstätten
- Grundschule
- Verwaltungsgebäude, Außenstelle der VG Enkenbach-Alsenborn

Tourismus und Freizeitmöglichkeiten:
- Gastronomiebetriebe und Unterkunftsmöglichkeiten sind in Hochspeyer
- Jugendherberge mit ansprechendem Angebot
- Freibad Hochspeyer
- Nordic Walking Rundwege
- sehr gutes, markiertes Wander und Radwegenetz
- Waldlehrpfad (Hochspeyer ist vom Pfälzer Wald umgeben)
- Wanderreitstation
- Reiterhof mit Ferienprogramm
- "Swin Golf" und mehr, große Freizeitanlage
- Moutainbikepark

Besonderheiten zu dem Baugelände:
- Baugenehmigung für Ein-Zweifamilienhaus liegt vor
- Erschließung (Hausanschlüsse) in der Straße vorhanden
- Privatstraße kann als Zufahrt genutzt werden
- bereits arrondierte Flächen (Bauplatz)

Solche Grundstücke sind selten geworden, zumal im bebauten Ortsgegebiet zögern Sie nicht, greifen Sie zu und sichern Sie sich Ihr Stück Lebensqualität in einer der schönsten Regionen Deutschlands.

Direktanfrage


* bitte geben Sie mindestens eine Kontaktmöglichkeit an

Wohnung

Tief durchatmen - Wohnen in der Ruhezone!
Große Eigentumswohnung im L

67737 Frankelbach zum Verkauf
Wohnfläche:105m²
Zimmer:4,5
Baujahr1.988
Kaufpreis:149.000 EUR
mehr Anzeigen
Die komfortable Wohnung liegt in einem modernen Wohnhaus mit drei abgeschlossenen Wohneinheiten in einem ruhigen Wohngebiet von Frankelbach (Baugebiet "Ruhling"). Die zu verkaufende Wohnung ist im Dachgeschoss. Ein Stellplatz ist zugeordnet.

Die Wohnung ist großzügig aufgeteilt und hell. Über das gepflegte Treppenhaus erreichen Sie die Wohnung. Sie ist in zwei Bereiche aufgeteilt: Wohnen und Schlafen. Flure, Küche, Wohn-/Esszimmer mit Loggia/Balkon, Kinderzimmer, Bad, Gäste-WC, und Gästezimmer, aufgeteilt auf ca. 105 m² Wohnfläche, können sofort bezogen werden. Ein Abstellraum und ein gemeinsamer Waschmaschinenraum sind vorhanden.

Durch die Höhenlage haben Sie einen herrlichen Blick über Frankelbach und die umliegende Naturlandschaft. Ruhe und doch die Nähe zu den größeren Orten sind die Vorteile, die der Ort Frankelbach hat.

Die eigenständige Gemeinde Frankelbach liegt in einem Seitental des Lautertals. Im Norden des Landkreises Kaiserslautern gelegen hat der Ort rd. 350 Einwohner. Die umgebende Naturlandschaft (Nordpfälzer Bergland) ist eine Ruheoase. Der namensgebende Frankelbach mündet im Nachbarort Olsbrücken in die Lauter.

Frankelbach hat keine Durchgangstraßen. Die wichtigste Verkehrsader im Lautertal ist die B 270, die von Kaiserslautern über Wolfstein und Lauterecken nach Idar-Oberstein führt. Von dieser zweigt die Kreisstraße 27 nach Frankelbach ab. Die Bahnlinie von Kaiserslautern nach Lauterecken nutzt ebenfalls das Tal der Lauter. Der nächste Autobahnanschluss liegt etwa zwölf Kilometer von Frankelbach entfernt (Kaiserslautern-West an der A 6 von Kaiserslautern nach Saarbrücken).

Einkaufsmöglichkeiten sind in der Kleinstadt Wolfstein (6 km) und in den Gemeinden Richtung Kaiserslautern (Katzweiler, Otterbach-Otterberg) zu finden. Die Universitätsstadt Kaiserslautern ist etwa 16 km entfernt.

Die Wohnung ist überdurchschnittlich ausgestattet. Sehr schöne hochwertige Laminatböden und Fliesen sind verlegt. Die Einbauküche ist nahezu im Neuzustand.

Ausführliche Informationen erhalten Sie jederzeit per E-Mail. Für Terminvereinbarungen zur Besichtigung des Objekts bitten wir um Rücksprache mit unserem Büro, gerne per E-Mail.

Die Firma Gödtel Immobilien GmbH als Vermittler übernimmt keine Haftung, Gewährleistung und/oder sonstige Einstandspflichten im Zusammenhang mit dem Inhalt und/oder der Richtigkeit dieses Exposés. Alle Angaben beruhen auf Mitteilungen der Auftraggeber und erfolgen ohne unsere Gewähr für die Richtigkeit. Irrtum und Zwischenverkauf vorbehalten. Wir weisen explizit darauf hin, dass die von uns weitergegebenen Objektinformationen vom Verkäufer und von uns weder auf ihre Richtigkeit noch auf ihre Vollständigkeit überprüft worden sind.

Hinweis: Durch die schriftliche Bestätigung der Inanspruchnahme unserer Tätigkeit als Makler kommt ein Maklervertrag zustande, insbesondere durch die Zusendung des Objektexposes und/oder der Erteilung eines Suchauftrags. Die Höhe der Maklercourtage ist in der rechtsverbindlichen gesetzlichen Regelung über die Verteilung der Maklerkosten bei der Vermittlung von Kaufverträgen über Wohnungen und Einfamilienhäuser vom 23. Dezember 2020 geregelt. Darin wird festgelegt, dass für den Verkäufer und den Käufer jeweils die ortsübliche Courtage von drei Prozent zuzüglich des jeweils gültigen Steuersatzes beim notariellen Vertragsabschluss verdient und fällig ist (Teilung der Courtage von ortsüblich sechs Prozent zuzüglich des jeweils geltenden Steuersatzes). Dadurch entsteht ein direkter Zahlungsanspruch gegenüber dem Käufer nach § 328 BGB (Vertrag zugunsten Dritter). Die Firma Gödtel Immobilien GmbH hat mit dem Auftraggeber (Verkäufer) einen Maklervertrag in gleicher Höhe abgeschlossen.

Direktanfrage


* bitte geben Sie mindestens eine Kontaktmöglichkeit an

Wohnung

Schön renovierte 3 ZKB in zentraler Innenstadtlage von Kaiserslautern

67657 Kaiserslautern zum Verkauf
Wohnfläche:63m²
Zimmer:3,0
Baujahr1.954
Kaufpreis:105.000 EUR
mehr Anzeigen
Das voll unterkellerte dreigeschossige Mehrfamilienhaus mit ausgebauten Dachgeschoss ist 1954 in massiver Bauweise errichtet worden. Es ist das Reihenendhaus einer Mehrspänneranlage in einer ruhigen Innenstadtstraße mit geschlossener Bebauung.

Die Eigentuswohnung liegt im 1. Obergeschoss auf der rechten Seite. Jeweils zwei Wohnungen befinden sich auf einer Etage. Nach Auszug der Mieter ist die Wohnung in diesem Jahr - mit Ausnahme der Badezimmereinrichtung - komplett renoviet worden. Die gesamte Innenausstattung (Böden, Decken, Wände) wurde professionell erneuert.

Die Wohnung liegt im Bereich Innenstadt - Ost von Kaiserslautern. Alle Einrichtungen des täglichen Bedarfs sind in wenigen Gehminuten erreichbar. Eine Bushaltestelle ist nur 100 m entfernt. Der Hauptbahnhof ist ebenfalls in wenigen Minuten per Stadtbus zu erreichen. Der Autobahnanschluss (A6 / A 63) ist nur 2 km entfernt.

Die Innenstadt ist fußläufig in 10 Minuten zu erreichen. Die Universitätsstadt Kaiserslautern bietet alle Annehmlichkeiten einer modernen Großstadt mit ca. 100.000 Einwohnern.

Kunststofffenster mit Doppelverglasung und Kunststoffrollläden.
Neue Fußböden mit Kunststoffbelag (Laminat) und Tapeten.
Bad mit Badewanne, Handwaschbecken und Toilette.

Der Einzug ist sofort möglich. Auch als Kapitalanlage geeignet.

Sie interessieren sich für das Angebot? Haben Sie Fragen zur Immobilie? Möchten Sie einen Besichtigungstermin? Wir freuen uns auf Ihre Anfrage!

Ausführliche Informationen erhalten Sie jederzeit per E-Mail. Für Terminvereinbarungen zur Besichtigung der Wohnung bitten wir mit Frau Feurich zu sprechen. Sie ist unter der Tel.-Nr. 0631 66766 für Sie erreichbar.

Die Firma Gödtel Immobilien GmbH als Vermittler übernimmt keine Haftung, Gewährleistung und/oder sonstige Einstandspflichten im Zusammenhang mit dem Inhalt und/oder der Richtigkeit dieses Exposés. Alle Angaben beruhen auf Mitteilungen der Auftraggeber und erfolgen ohne unsere Gewähr für die Richtigkeit. Irrtum und Zwischenverkauf vorbehalten. Wir weisen explizit darauf hin, dass die von uns weitergegebenen Objektinformationen vom Verkäufer und von uns weder auf ihre Richtigkeit noch auf ihre Vollständigkeit überprüft worden sind.

Hinweis: Durch die schriftliche Bestätigung der Inanspruchnahme unserer Tätigkeit als Makler kommt ein Maklervertrag zustande, insbesondere durch die Zusendung des Objekt Exposés und/oder der Erteilung eines Suchauftrags. Die Höhe der Maklercourtage ist in der rechtsverbindlichen gesetzlichen Regelung über die Ver­tei­lung der Mak­ler­kosten bei der Vermittlung von Kaufverträgen über Woh­nungen und Einfamilien­häuser vom 23. Dezember 2020 geregelt. Darin wird festgelegt, dass für den Verkäufer und den Käufer jeweils die ortsübliche Courtage von 3 Prozent zuzüglich des jeweils gültigen Steuersatzes beim notariellen Vertragsabschluss verdient und fällig ist (Teilung der Courtage von ortsüblich sechs Prozent zuzüglich des jeweils geltenden Steuersatzes). Dadurch entsteht ein direkter Zahlungsanspruch gegenüber dem Käufer nach § 328 BGB (Vertrag zugunsten Dritter). Die Firma Gödtel Immobilien GmbH hat mit dem Auftraggeber einen Maklervertrag in gleicher Höhe abgeschlossen.

Direktanfrage


* bitte geben Sie mindestens eine Kontaktmöglichkeit an

Wohnung

Schöne Eigentumswohnung (2 ZKB mit Terrasse) in bevorzugter Waldrandla

67661 Kaiserslautern / Hohenecken zum Verkauf
Wohnfläche:43m²
Zimmer:2,0
Baujahr1.992
Kaufpreis:139.000 EUR
mehr Anzeigen
1992 wurde das Apartmenthaus in massiver Bauweise errichtet. Es befindet sich in einem guten Bau- und Unterhaltungszustand. Das Grundstück ist gepflegt. Im vorderen Bereich befinden sich die zugeordneten Stellplätze.

Das Gebäude ist zweigeschossig und voll unterkellert. Es umfasst 16 Apartments, teils mit Kellerräumen und Stellplätzen. Eine neue Gas - Zentralheizung wurde 2023 eingebaut (nicht im vorliegenden Energieausweis berücksichtigt).

Die Wohnung ist vermietet.

Ein alter Baumbestand wertet das ca. 719 qm große Grundstück auf. Am Ende der Stichstraße beginnt der Naturpark Pfälzerwald..

Das Apartmenthaus liegt in einer ruhigen Seitenstraße (Stichstraße) in Hohenecken. Über die Bundesstraße (B 270) ist die Kernstadt Kaiserslautern gut und schnell zu erreichen. Städtische Linienbusse, auch direkt zum Universitätscampus, verkehren regelmäßig. Die Bushaltestelle ist fünf Gehminuten entfernt. Des Weiteren gibt es auch eine Bahnverbindung zum Hauptbahnhof Kaiserslautern. Vielfältige Einkaufsmöglichkeiten für den täglichen Bedarf sind in Hohenecken und im ca. 3 km entfernten Kaiserslauterer Gewerbegebiet West vorhanden.

Zur Universität, die auch in wenigen Minuten per Fahrrad quer durch den Pfälzer Wald zu erreichen ist, sind es etwa 4 km, zur Fachhochschule ebenfalls etwa 4 km und ins Zentrum von Kaiserslautern etwa 6 km.

- Gas-Zentralheizung, 2023 installiert mit Warmwasserspeicher - Bitte beachten: Der vorliegende Energieausweis berücksichtigt nicht die neu installierte Heizungsanlage.
- Waschmaschinenplatz im Keller möglich
- Stellplatz im Freien
- 2 kleine ebenerdige Terrassen
- Pantryküche
- gute Ausstattung
- gute Miete (Rendite)

Ausführliche Informationen erhalten Sie jederzeit per E-Mail. Für Terminvereinbarungen zur Besichtigung des Objekts bitten wir mit unserer Mitarbeiterin, Frau Feurich, zu sprechen. Sie ist für Sie unter der Telefonnummer 0631 66766 erreichbar.

Die Firma Gödtel Immobilien GmbH als Vermittler übernimmt keine Haftung, Gewährleistung und/oder sonstige Einstandspflichten im Zusammenhang mit dem Inhalt und/oder der Richtigkeit dieses Exposés. Alle Angaben beruhen auf Mitteilungen der Auftraggeber und erfolgen ohne unsere Gewähr für die Richtigkeit. Irrtum und Zwischenverkauf vorbehalten. Wir weisen explizit darauf hin, dass die von uns weitergegebenen Objektinformationen vom Verkäufer und von uns weder auf ihre Richtigkeit noch auf ihre Vollständigkeit überprüft worden sind.

Hinweis: Durch die schriftliche Bestätigung der Inanspruchnahme unserer Tätigkeit als Makler kommt ein Maklervertrag zustande, insbesondere durch die Zusendung des Objektexposes und/oder der Erteilung eines Suchauftrags. Die Höhe der Maklercourtage ist in der rechtsverbindlichen gesetzlichen Regelung über die Verteilung der Maklerkosten bei der Vermittlung von Kaufverträgen über Wohnungen und Einfamilienhäuser vom 23. Dezember 2020 geregelt. Darin wird festgelegt, dass für den Verkäufer und den Käufer jeweils die ortsübliche Courtage von drei Prozent zuzüglich des jeweils gültigen Steuersatzes beim notariellen Vertragsabschluss verdient und fällig ist (Teilung der Courtage von ortsüblich sechs Prozent zuzüglich des jeweils geltenden Steuersatzes). Dadurch entsteht ein direkter Zahlungsanspruch gegenüber dem Käufer nach § 328 BGB (Vertrag zugunsten Dritter). Die Firma Gödtel Immobilien GmbH hat mit dem Auftraggeber (Verkäufer) einen Maklervertrag in gleicher Höhe abgeschlossen.

Direktanfrage


* bitte geben Sie mindestens eine Kontaktmöglichkeit an

Wohnung

4 Zimmer, Küche und Bad zu vermieten in Pirmasens

66955 Pirmasens / Niedersimten zu Vermieten
Wohnfläche:90m²
Zimmer:4,0
Baujahr1.911
Kaltmiete:370 EUR
Nebenkosten:80 EUR
mehr Anzeigen
Die Wohnung befindet sich im Dachgeschoß (2. Obergeschoß) eines gepflegten Mehrfamilienhauses.

Sie verfügt über ein großes Wohnzimmer, eine Küche, drei Schlafzimmer, ein Bad mit Wanne sowie eine Diele. Ausgestattet sind die Wohnräume mit Laminatboden, Fliesen im Badezimmer. Das Badezimmer ist ohne Fenster.

Stadtauswärts in südwestlicher Richtung von Pirmasens (ca. 40.000 Einwohner) liegt, eingebettet in einer Talsenke, umgeben von Wald und herrlicher Natur, mit Zugang zum Naherholungsgebiet Gersbachtal, der Stadtteil Niedersimten. Heute zählt der Vorort ca. 1.050 Einwohner. Niedersimten ist geprägt durch ein vielfältiges Angebot an Vereinen und bietet somit allen Interessierten ein reges Vereinsleben.

Der ehemals zusammen mit Obersimten eine Gemeinde bildende Stadteil Niedersimten liegt nur 2 km von Pirmasens entfernt. Lebensmittelsupermärkte, Bäckereien, Metzgereien usw. - kurz gesagt: Alle Dinge die zum täglichen und auch längerfristigen Bedarf zählen - sind in 5 bis 10 Minuten mit dem Auto oder den regelmäßig verkehrenden Stadtbuissen einfach und gut zu erreichen. Pirmasens bietet alle Annehmlichkeiten eines Mittelzentrums im Bereich der Südwestpfalz. Ebenso ist ein städisches Krankenhaus mit mehr als 12 Schwerpunktzentren eingerichtet. Zahlreiche Facharztpraxen ergänzen das vielfältige Angebot.

Weiterführende Schulen sind in Pirmasens ansässig. Eine Dependance der Hochschule Kaiserslautern hat ihren Sitz unweit der B 270 bzw. B10 (überregionale Bundesstraßen) im Norden von Pirmasens. Kindergarten, Kindertagesstätten und weitere Betreuungsangebote sind in Pirmasens vorhanden. Sämtliche Dienstleistungs- und Handwerkerbranchen sind ebenso zu finden wie Geldinstitute und größere Arbeitgeber, wie z.B. Fabriken (Profine/Kömmerling oder die Schuhindustrie, die z.T. noch in Pirmasens produziert) oder Lebensmittelgroßhandel (z.B. Wasgau).

Doppelverglasung
Heizung - Nachtspeicher(Strom)

Die Firma Gödtel Immobilien GmbH als Vermittler übernimmt keine Haftung, Gewährleistung und/oder sonstige Einstandspflichten im Zusammenhang mit dem Inhalt und/oder der Richtigkeit dieses Exposés. Alle Angaben beruhen auf Mitteilungen der Auftraggeber und erfolgen ohne unsere Gewähr für die Richtigkeit. Irrtum und Zwischenverkauf vorbehalten.

Direktanfrage


* bitte geben Sie mindestens eine Kontaktmöglichkeit an

Wohnung

Schöne 2 ZKB in der Nähe von Landau in der Pfalz

76831 Appenhofen zu Vermieten
Wohnfläche:54m²
Zimmer:2,0
Baujahr1.995
Kaltmiete:480 EUR
Nebenkosten:100 EUR
mehr Anzeigen
Es handelt sich um einen ca. 54 m² große Wohnung im 1. Obergeschoß mit 2 Zimmer. Sie verfügt über eine gute Raumaufteilung. In der Küche ist eine Einbauküche. Ausgestattet sind die Wohnräume mit Laminatboden und im Badezimmer mit Fliesen und Dusche.
Die Wohnung ist sehr gut geeignet für zwei Personen oder für einen Single - Haushalt.



- Einbauküche
- Garage
- Stellplatz

Die Firma Gödtel Immobilien GmbH als Vermittler übernimmt keine Haftung, Gewährleistung und/oder sonstige Einstandspflichten im Zusammenhang mit dem Inhalt und/oder der Richtigkeit dieses Exposés. Alle Angaben beruhen auf Mitteilungen der Auftraggeber und erfolgen ohne unsere Gewähr für die Richtigkeit. Irrtum und Zwischenverkauf vorbehalten.

Direktanfrage


* bitte geben Sie mindestens eine Kontaktmöglichkeit an